Rodinný dům v Újezdu
Újezd • Rok 2020
Újezd
Rok: 2020
Plocha: 135 m²
Rodinný dům
Fotogalerie
O projektu
Moderní dům s nadstandardními parametry postavený montovanou technologií.
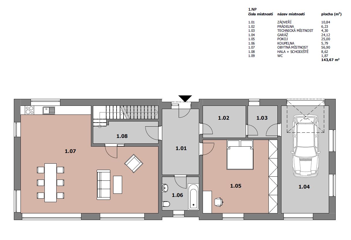
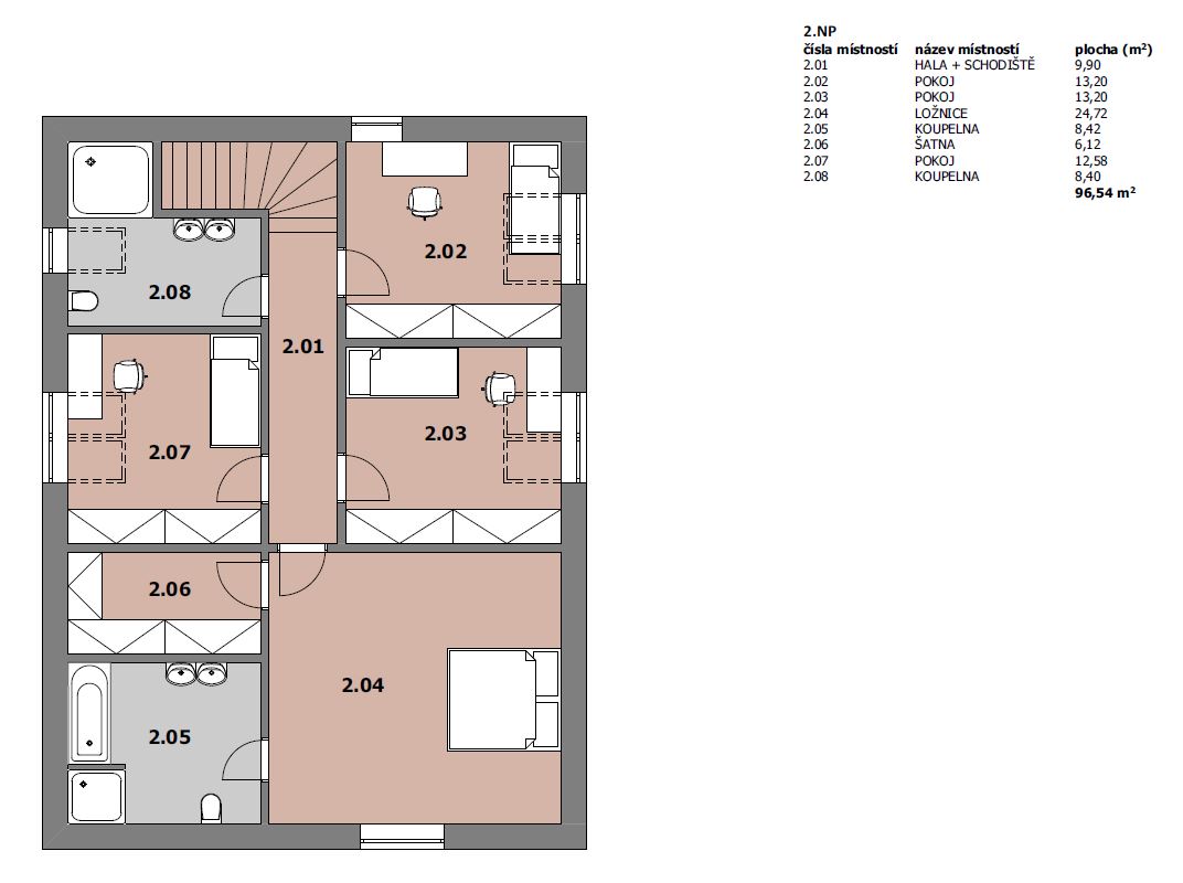
Půdorysy
1. podlaží

2. podlaží

Újezd • Rok 2020
Moderní dům s nadstandardními parametry postavený montovanou technologií.

