Rodinný dům v Kunicích
Kunice • Rok 2016
Kunice
Rok: 2016
Plocha: 160 m²
Rodinný dům
Fotogalerie
O projektu
Klasický rodinný dům se sedlovou střechou. Dom postavený s použitím moderních izolačních materiálů a kvalitního provedení.
Použitá technologie
Difuzně otevřený systém DIFU
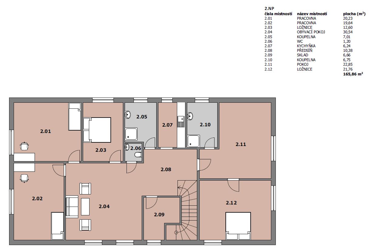
Půdorysy
1. podlaží

2. podlaží
